Italiano
5 Bagni 8 Box/Posti auto 1600 m2
Caratteristiche principali
Codice
SAN DAMIANO ASTI
Prezzo
Riservato
Classe
F
Locali
25
Altre caratteristiche e accessori
Stato Immobile
Ottimo
Grado
Medio
Posizione
Centro Storico
Totale Piani
Tre
Lati Liberi
4
Tipo Soggiorno
Soggiorno
Tipo Cucina
Abitabile
Tipo Riscaldam.
Caldaia
Acqua Calda
Autonoma
Infissi
Legno
Serramenti
Ottimo
Persiana
Tapparella Legno
Pavim. Giorno
Ceramica
Pavim. Notte
Ceramica
Pavim. Cucina
Ceramica
Pavim. Bagno
Ceramica
Numero Vetrine
Quattro
Destinazione
Commerciale
Appartamenti
Due
Accessori
Armadio a muro, Camino, Cancello Elettrico, Doppi Vetri, Lavanderia, Passaggio Pedonale, Porta Blindata, Ripostiglio
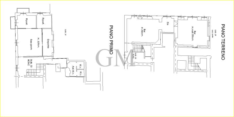
SAN DAMIANO ASTI, Vendesi intero stabile composto da due appartamenti, un negozio commerciale locato mq 80, un negozio commerciale libero su 2 piani mq. 400, oltre ad edificio EX Cinema ed intera manica da recuperare su via Cesare Balbo. Area cortilizia di proprietà esclusiva. TRATTATIVA RISERVATA. PER INFORMAZIONI E VISITE INVIARE MAIL A gmimmobiliare@tiscali.it
VIA ROMA ,
Cookie preference